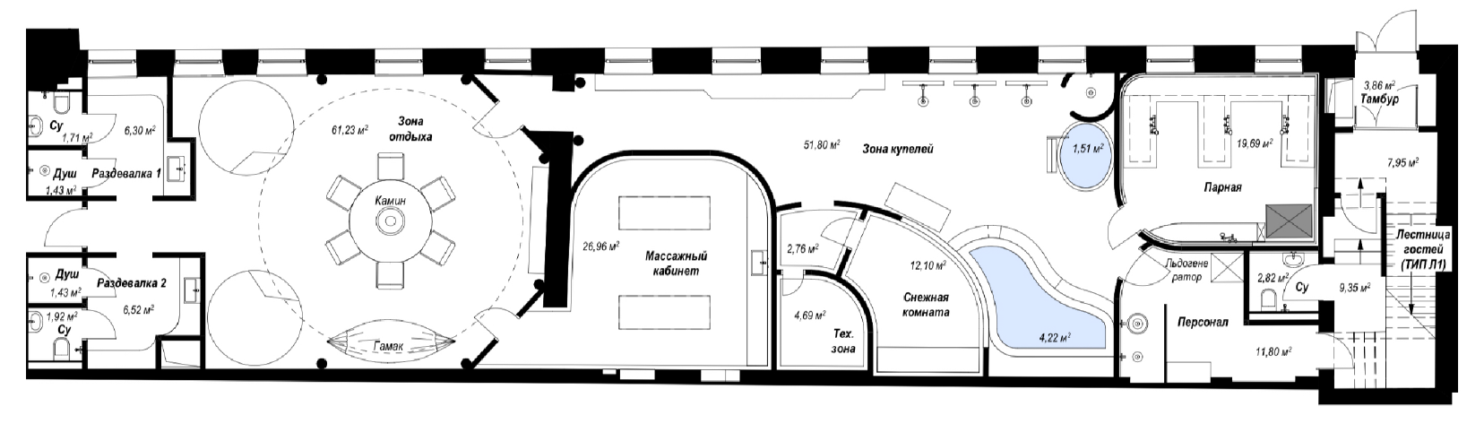
Планировочное решение Парная
Добавление в интерьер национального орнамента
Используем символы главного праздника Якутии Ысыах
Древний якутский праздник, посвященный общению с Небом.
Ритуальные столбы считаются главным символом праздника.
Древний якутский праздник, посвященный общению с Небом.
Ритуальные столбы считаются главным символом праздника.
Снежный стеллаж плавно перетекает в скамью и стол. Для создания такой конструкции используем современные материалы
В концепции дизайна мы используем архитектурные принципы национальных жилищ.
Ураса - тип старинного летнего жилища якутов, конусообразный шалаш из жердей, обтянутый берестой. Считается, что это самая древняя форма якутских жилищ.
Балаган - традиционное зимнее жилище якутов. Представляет из себя невысокую, вытянутую в длину четырехугольную постройку из наклонных бревен с плоской земляной кровлей.
Ураса - тип старинного летнего жилища якутов, конусообразный шалаш из жердей, обтянутый берестой. Считается, что это самая древняя форма якутских жилищ.
Балаган - традиционное зимнее жилище якутов. Представляет из себя невысокую, вытянутую в длину четырехугольную постройку из наклонных бревен с плоской земляной кровлей.
Мы вдохновлялись конструктивными особенностями национального жилища, применив его формы и традиционные детали в интерьере бани
Интеграция национального быта и использование в декоре национальной посуды и керамики
Огонь всегда являлся центом жилища якутов
Планировочное решение
Баня на 6 гостей
Баня на 6 гостей
Якутия является крупнейшим по площади регионом страны, самой большой административно-территориальной единицей в мире и одним из самых суровы в климатическом отношении мест в мире: здесь расположен полюс холода Северного полушария.
саха
Email
in-out.media@yandex.ru
Телефон
+ 7 (495) 509-66-60
Адрес
г. Москва, Романов пер, д. 2