Помещение раздевалки
Округлые формы раковин и зеркал поддерживают общую атмосферу
Использование дерева в интерьере.
Округлые формы раковин и зеркал поддерживают общую атмосферу
Использование дерева в интерьере.
Мокрая зона
Спиралевидные формы отсылают нас к философии
архитектурной формы города.
В рельефе стен мы считываем вековую историю города под землей.
Спиралевидные формы отсылают нас к философии
архитектурной формы города.
В рельефе стен мы считываем вековую историю города под землей.
Стилистика камина отсылает нас к древним печам,
стоявшим в каждом доме комплекса Аркаим.
стоявшим в каждом доме комплекса Аркаим.
Зона отдыха
В жилище города Аркаим в центре помещения располагается световое окно.
Вековые наслоения грунта
Стилистика исполнения купелей отсылает нас к формам колодцев в Аркаиме.
В жилище города Аркаим в центре помещения располагается световое окно.
Вековые наслоения грунта
Стилистика исполнения купелей отсылает нас к формам колодцев в Аркаиме.
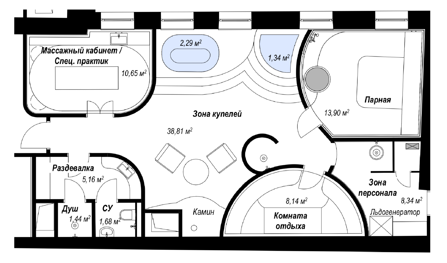
Планировочное решение
Баня для двоих гостей
Площадь 86 кв.м
Баня для двоих гостей
Площадь 86 кв.м
Это город-крепость, город-мастерская литейщиков, где производилась бронза.
Это город-храм и обсерватория, где, вероятно, проводились сложные для того
времени сложные астрономические наблюдения.
Это город-храм и обсерватория, где, вероятно, проводились сложные для того
времени сложные астрономические наблюдения.
Построено около 4 тыс. лет назад.
Аркаим - укрепленное поселение эпохи средней бронзы,
относящееся к "стране городов", поселениям на территории
Челябинской и Оренбургской областей.
Аркаим - укрепленное поселение эпохи средней бронзы,
относящееся к "стране городов", поселениям на территории
Челябинской и Оренбургской областей.
АРКАИМ
Email
in-out.media@yandex.ru
Телефон
+ 7 (495) 509-66-60
Адрес
г. Москва, Романов пер, д. 2